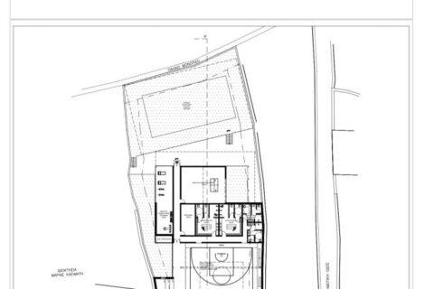
Όπως είχαμε ανακοινώσει και το καλοκαίρι, ένα όνειρο δεκαετιών, παίρνει σάρκα και οστά. Παρακάτω, σας παρουσιάζουμε τα σχέδια του κλειστού γηπέδου μπάσκετ και βόλεϊ που θα φτιάξει ο σύλλογος μας έξω από το χωριό Καρβουνάδες, πάνω στον κεντρικό δρόμο, σε οικόπεδο που έχει παραχωρήσει η Εγχώριος Περιουσία στον σύλλογο μας.
Έχοντας πάρει την προέγκριση απο την πολεοδομία και τελειώνοντας τα χαρτιά για την τελική άδεια του έργου, ο σύλλογός μας θα προσπαθήσει να εντάξει το έργο στο πρόγραμμα LEADER. Όποιος πραγματικά επιθυμεί να βοηθήσει σε αυτό το πολύ μεγάλο έργο που βάλαμε ως στόχο για το κοινό καλό, να έρθει σε επαφή μαζί μας.
Επίσης, να πούμε ένα μεγάλο ευχαριστώ στον κ. Χρύσανθο Καλλίγερο και την εταιρεία του Ergosystem, που μας έκανε εντελώς δωρεάν τη στατική μελέτη για το έργο μας. Τέλος, πρέπει να ευχαριστήσουμε όλους εσάς, που μας έχετε στηρίξει ολο αυτό το διάστημα μέσα από τις εκδηλώσεις μας, που είχαν ως σκοπό την ενίσχυση του συλλόγου μας για το έργο αυτό που θα ωφελήσει το νησί μας και τους συμπολίτες μας.
Με χαρά ο Πρόεδρος και το ΔΣ του συλλόγου.
Φατσέας Ορέστης
Νοταράς Παναγιώτης
Λουράντος Βαγγέλης
Φατσέα Ελένη
Elmazai Julian




